Öljysäiliöalusten turvallisuussuunnittelu ja vaarallisten alueiden luokitus
Sinä olet täällä: Koti » Uutiset » Öljytankkeri » Öljysäiliöalusten turvallisuussuunnittelu ja vaarallisten alueiden luokitus

Öljysäiliöalusten turvallisuussuunnittelu ja vaarallisten alueiden luokitus

Luettu:0     Kirjoittaja:Sivustoeditori     Julkaisuaika: 2024-01-05      alkuperä:paikka

Tiedustella

facebook sharing button
twitter sharing button
line sharing button
wechat sharing button
linkedin sharing button
pinterest sharing button
whatsapp sharing button
sharethis sharing button
Öljysäiliöalusten turvallisuussuunnittelu ja vaarallisten alueiden luokitus


Öljytankkeri ovat bulkkinesteiden kuljetukseen erikoistuneita laivoja, ja lastit liittyvät pääasiassa bulkkiraakaöljyn ja öljytuotteiden kuljetuksiin, joiden leimahduspiste on 60°C tai alle.IEC-60092-502:n mukaan öljytuotteita kuljettavilla aluksilla, joiden leimahduspiste on alle 60°C, on suurempi vaara, ja spesifikaatiossa on tarkemmat vaatimukset vaara-alueen jakamisesta, ja kaikkien vaara-alueella olevien sähkölaitteiden tulee täyttää asiaankuuluvat räjähdysvaatimukset. -todentamisvaatimukset.Vaarallisten alueiden luokitus öljytankkeri on erittäin tärkeä osa niiden turvallisuussuunnittelua.


Öljysäiliö-9


Öljysäiliöaluksen vaarallisten alueiden luokittelun periaatteet

Vaarallisten alueiden luokitus öljytankkeri on pääasiassa IEC-60092-502:n mukainen nestelastialuksille, jotka kuljettavat syttyviä nesteitä, joiden leimahduspiste on enintään 60 °C.Se jakaa vaaralliset alueet: vyöhyke 0, vyöhyke 1 ja vyöhyke 2, jolloin vyöhyke 0 on vaarallisin ja vyöhyke 2 vähiten.Lastiruumat, öljy- ja vesisäiliöt, painetyhjiöputket tai muut ilmanvaihtojärjestelmät samalla alueella kuin lastiruumat sekä sisätilat, joissa on lastia tai putkistoa ja syttyviä kaasuja tai höyryjä käsitteleviä laitteita, luokitellaan kaikki vyöhykkeelle 0.


Vyöhykkeen 1 määritelmä on suhteellisen monimutkainen ja koostuu seuraavista: a) suljetut tilat välittömästi nestemäisten lastisäiliöiden vieressä;b) osastot, joissa lastiletkuja säilytetään, sekä suljetut ja puolisuljetut tilat, joissa on lastilinjoja;ja c) luukkujen, kaasun tai höyryn poistoaukkojen, lastinjakeluventtiilien, lastiputkien laippojen ja nestelastisäiliöiden paine- ja tyhjiöventtiilien vieressä olevat alueet.2 voidaan ymmärtää yksinkertaisesti vyöhykkeen 1 laajennuksena, esim. vyöhykkeen 1 tilat, sisään- ja uloskäynnit sekä tuuletus- ja ilma-aukot.Vyöhykkeen 1 laajennus ulospäin avokansialueen rajalla, kuten sisään- ja uloskäynnit, ilmanvaihto ja tuuletusaukot.Lisäksi avokannen rakenteen ominaisuuksien mukaan 'käännetty' luumateriaalia sisältävä lastiruuma 2,4 metrin korkeudelle kannen yläpuolelle katsotaan vyöhykkeeksi 1 ja kansi, jossa on 'käännetty' Luumateriaalia, jonka korkeus on 2,4 metriä kannen yläpuolella, pidetään vyöhykkeenä 2.


Öljysäiliöaluksen vaarallisten alueiden luokitustaulukko


Erilaisten aukkojen asettelu ja vaikutus

Kohteen aukot öljytankkeri jaetaan pääasiassa seuraaviin kolmeen tyyppiin: ensinnäkin henkilökunnan pääsyyn ja päivittäiseen käyttöön tarkoitetut aukot, kuten kaivon kannet, luukkujen kannet, ovet, ikkunat ja pesuluukun kannet;toiseksi matkustamon ilmanvaihto, kuten luonnollinen ilmanvaihto, koneellinen ilmanvaihto, ylipainetuuletus;Kolmanneksi hengittävä järjestelmä, kuten ilmaputket, syvyysmittariputket, korkeapaineventtiilit, hengittävät mastot ja tyhjiövapauttimet.Ensimmäisen tyyppisen aukon tulee täyttää miehistön käyttövaatimukset ja kiinnittää asianmukaista huomiota räjähdysvaarallisten alueiden vaikutuksiin, ja tässä keskustelussa keskitytään luukun ilmanvaihdon ja erityisten hengittävien järjestelmien järjestelyyn ja vaikutukseen.


Kohtuullinen ja tehokas ilmanvaihto voi estää palavien kaasujen kerääntymisen, yleensä tulo- ja poistoilman muodossa.Vaarallisten paikkojen tuuletusta varten sen tulee ensinnäkin olla kaukana turvallisten paikkojen ilmanvaihdosta;toiseksi vaarallisten paikkojen ilmanottoaukon tulisi olla mahdollisimman pitkälle turvallisella alueella, jos se on todella väistämätöntä, on neuvoteltava ajoissa luokituslaitoksen kanssa;lopuksi ilmanpoistoaukkoa ei voida järjestää vaarallisemmalle alueelle, muuten vaaratasoa tulee nostaa.Otetaan pumppuosaston tuuletusjärjestely öljytankkeri esimerkiksi pumppuosasto on 1 alueen lastiöljysäiliön vieressä, henkilöstön toiminnan tekijöistä johtuen tämä alue ei ole inertti alue, joten pumppuosaston tuuletusympäristö on erityisen tärkeä.Pumppuosasto on pumppauksen tiellä (30 kertaa/tunti) ilmanvaihtoa varten, pumppuosaston ilman tulo- ja poistoaukon tulee olla mahdollisimman kaukana muista vaaran lähteistä, eivätkä nämä kaksi voi vaikuttaa toisiinsa.Ilmanottoaukon tulee olla turvallisella alueella, mutta erittelyn mukaan 3 metriä pumppukammion ilmanottoaukon ympärillä on myös vaara-alue, joka on otettava huomioon suunnittelussa.


Lastipumppuosastojen tuuletus


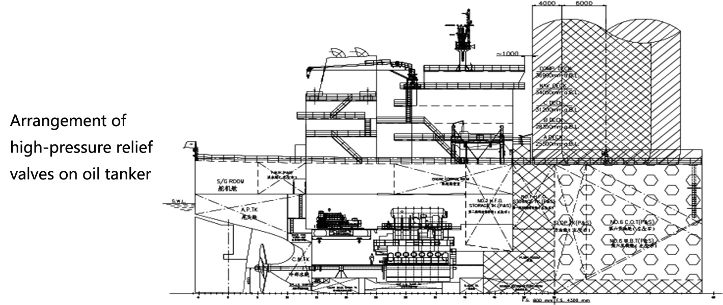
Korkeapaineilmanpoistoventtiilit, ilmausmasstot ja tyhjiövapauttimet lastiruumoissa ovat ilmauslaitteita, jotka öljytankkeri.Nämä laitteet vapauttavat öljyä ja kaasua ulkoilmaan, kun öljyn ja kaasun paine lastiruumassa on liian korkea, ja siksi IEC on antanut tiukimmatkin rajat tällaisten laitteiden vaara-alueille.Nestelastin huohotinputken ympärillä oleva alue, joka tuottaa suuren määrän kaasua tai höyryseosta, joka syntyy lastin käsittelyn, painolastin tai kaasun poistamisen aikana nestelastisäiliöstä, korkeusrajoitettoman pystysuoran sylinterin, jonka säde on 6 metriä ylöspäin huohottimesta putki ja puolipallon sisällä oleva avokansialue, jonka säde on 6 metriä alaspäin tuuletusputkesta, tai avoimen kannen puolisuljettu alue kuuluvat vyöhykkeeseen 1 ja vyöhykkeen 1 ulkopuolella olevat 4 metriä vyöhykkeelle 2 , kuten kuvasta näkyy. Yksinkertaisesti sanottuna niiden vaikutusalue on sylinteri, jonka säde on 10 metriä ja jonka korkeus on rajoittamaton.Tavaratilan tuulettimien sijoittelussa tulee ottaa huomioon seuraavat tekijät: ensinnäkin, pysy kaukana ylärakenteesta;toiseksi, vältä kannen varastotilan ilmanvaihtoa lastiruumassa ja kannen valonheittimen mastossa;kolmanneksi, pidä vähintään 10 metrin etäisyys Bowmanin varaston ovesta.


Korkeapaineventtiilien järjestely öljysäiliöaluksessa


Conclude

Suunnitteluun öljytankkeri, räjähdyssuojattu on tärkeä osa turvasuunnittelua, jos suunnittelu ei ole oikea, se aiheuttaa suuren vaaran tulevalle käytölle.Suunnittelijoiden tulee kiinnittää huomiota öljysäiliöaluksen vaarallisten alueiden luokitteluun ja kiinnittää huomiota eri osapuolten koordinointiin suunnitteluprosessissa, jotta kaikenlaiset aukot, ilmanvaihto, ilma ja ohjaamon asettelu öljytankkeri voi täyttää määräykset ja normit. Qinhai parantaa jatkuvasti sisäistä johtamistasoaan painottaen laadun etuohjausta ja prosessien hallintaa.Olemme saaneet China Classification Societyn myöntämän CCS-laadunhallintasertifikaatin ja läpäisseet sertifioinnin ja ympäristövaikutusten arvioinnin sekä ministeriöiden hyväksynnän. Viime vuosina yritys on noudattanut kansallisen strategisen käyttöönoton sekä laivateollisuuden tiedottamisen ja älykkään kehittämisen vaatimusten kanssa. Edistää 'kahden integraatiota' ja jatka tuotantoautomaation ja älykkään valmistuksen toteuttamista.Meillä on useita automaattisia kokoonpanoja ja puoliautomaattisia tuotantolinjoja.

TUOTEKATEGORIA

Satunnaiset tuotteet